
Even Coffee
FSS / 2025
Client Even Café Inc
Location Montréal, QC
Phase Completed
A warm space that champions human connections over productivity // Un espace chaleureux qui privilégie les interactions humaines plutôt que la productivité
Even Coffee
FSS / 2025
Client Even Café Inc
Location Montréal, QC
Phase Completed
A warm space that champions human connections over productivity // Un espace chaleureux qui privilégie les interactions humaines plutôt que la productivité
Français
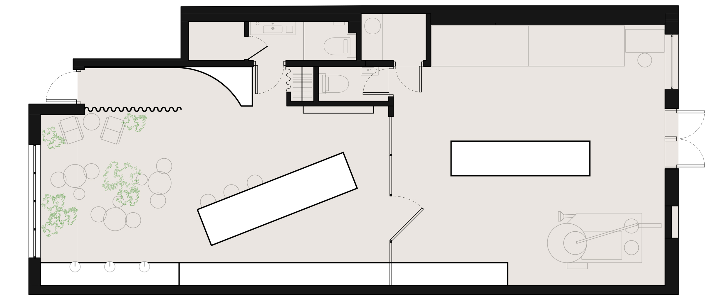
In 2024, coffee roaster Andrew Werbowyj asked Future Simple Studio to create a bespoke interior for a new roastery and cafe in Montreal. Within 1,170 sq ft., we aimed to create a space that feels like someone’s home and champions human connections over productivity.



Named Even to embody the feeling of calm that one gets through the ritual of coffee, we opted for a palette that is raw, effortless, earthy, and precise. Considering the restricted budget, we selected common construction materials and found innovative ways to elevate their natural characteristics.






Visitors enter the café through a curved threshold wrapped in natural cork, framed by a silver mesh curtain that subtly separates the café from the outside world. Inside, a concrete bar is positioned at an angle, inviting fluid movement and interaction. Warm brown hues, inspired by the roasting process, fill the space, evoking a sensory experience of color, scent, and sound. A translucent glass partition reveals glimpses of the roasting process.



Even is known to the neighbourhood—the space with the garage door always open. Neighbours, regulars and dogs are always encouraged to linger and spill onto the street, reinforcing one of the major objectives of Even: building community.
